MESSAGE新今里【共同住宅】御成約済
【 】令和2年建築 表面利回り5.98%
| 最寄駅 | 所在地 | 面積 | 築年月 | 間取り |
|---|---|---|---|---|
近鉄大阪線「今里駅」 徒歩 6分 | 大阪府大阪市生野区新今里5丁目6-3 | 土地/188.04㎡ | 2020年02月 | 1 K |
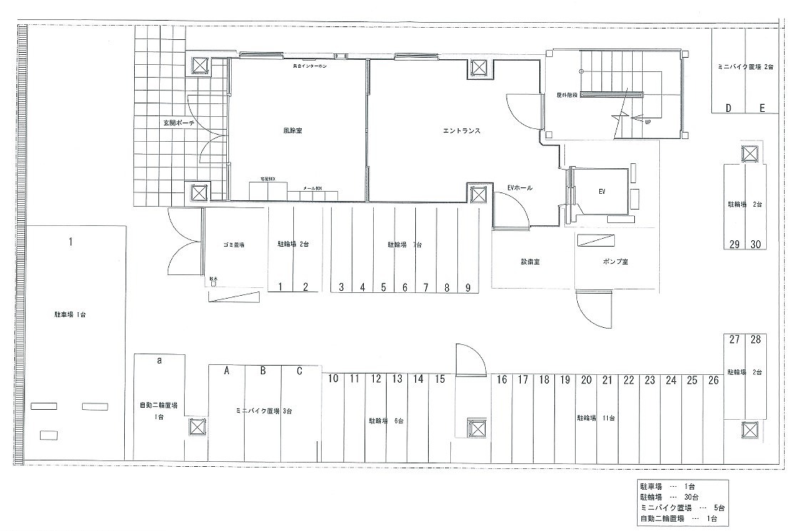
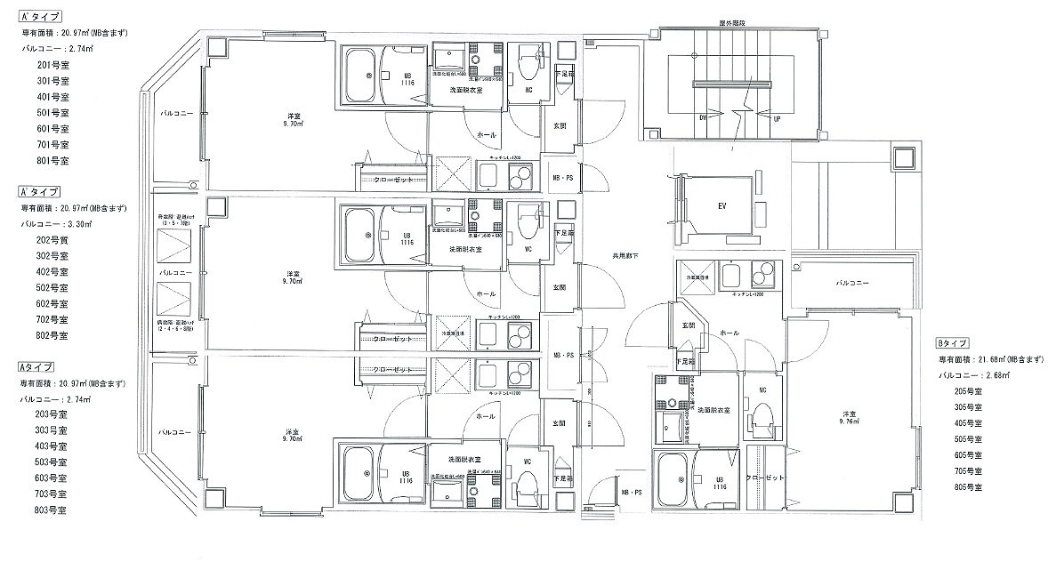
物件写真・間取り
物件概要
| 物件名 | MESSAGE新今里【共同住宅】御成約済 |
|---|
| 交通機関 | 近鉄大阪線「今里駅」 徒歩 6分 |
|---|
| 所在地 | 大阪府大阪市生野区新今里5丁目6-3 |
|---|
| 間取り | 1 K |
|---|
| 土地権利 | 所有権 |
|---|
| 土地面積 | 188.04㎡ |
|---|
| 私道負担面積 | 無し |
|---|
| 建物構造 | 鉄骨造 |
|---|
| 築年月 | 2020年02月 |
|---|
| 都市計画 | 市街化区域 |
|---|
| 用途地域 | 商業地域 |
|---|
| 建ぺい率 | 80% |
|---|
| 容積率 | 400% |
|---|
| 駐車場 | 有 |
|---|
| 接道 |
|
|---|
| 地目 | 宅地 |
|---|
| 現況 | 賃貸中 |
|---|
| 引渡し | 相談 |
|---|
| 備考 | 売主:SHU株式会社 代理:株式会社ホームメッセージ |
|---|
| 取引態様 | 売主 |
|---|
| 情報登録日 | 2024年03月31日 |
|---|
| 情報更新日 | 2025年01月24日 |
|---|






























