大宮4丁目【新築一戸建】御成約済
【 新築一戸建て 】価格に注目! 南向きで公道6mに面しています。
| 最寄駅 | 所在地 | 面積 | 築年月 |
|---|---|---|---|
大阪メトロ谷町線「千林大宮駅」 徒歩 10分 | 大阪市旭区大宮4丁目5-29 | 土地/76.63㎡ 建物/98.81㎡ | 2022年12月 |
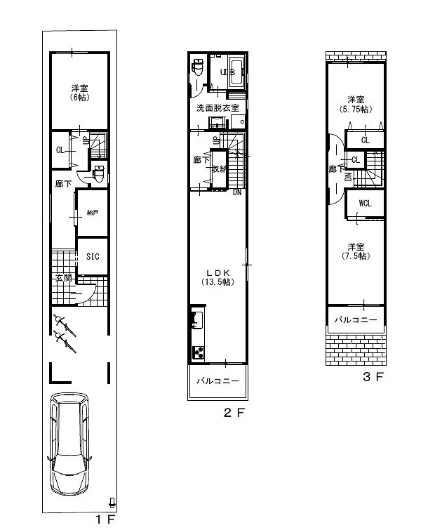
物件写真・間取り
物件概要
| 物件名 | 大宮4丁目【新築一戸建】御成約済 |
|---|
| 交通機関 | 大阪メトロ谷町線「千林大宮駅」 徒歩 10分 |
|---|
| 所在地 | 大阪市旭区大宮4丁目5-29 |
|---|
| 土地権利 | 所有権 |
|---|
| 土地面積 | 76.63㎡ |
|---|
| 私道負担面積 | 無し |
|---|
| 建物面積 | 98.81㎡ |
|---|
| 建物構造 | 木造 |
|---|
| 築年月 | 2022年12月 |
|---|
| 都市計画 | 市街化区域 |
|---|
| 用途地域 | 第一種住居地域 |
|---|
| 建ぺい率 | 80% |
|---|
| 容積率 | 200% |
|---|
| 駐車場 | 有 |
|---|
| 接道 |
|
|---|
| 地目 | 宅地 |
|---|
| 現況 | 更地 |
|---|
| 引渡し | 相談 |
|---|
| 取引態様 | 専属 |
|---|
| 情報登録日 | 2020年12月25日 |
|---|
| 情報更新日 | 情報登録日より2週間 |
|---|
















