- HOME
- MESSAGE放出東 御成約済
MESSAGE放出東 御成約済
【 一棟 マンション 】令和2年4月 内部リニューアル工事済
| 最寄駅 | 所在地 | 面積 | 築年月 | 間取り |
|---|---|---|---|---|
JR学研都市線「放出駅」 徒歩 8分 | 大阪市鶴見区放出東2丁目21ー36 | 土地/447.51㎡ 建物/750.52㎡ | 1991年03月 | 1 K |
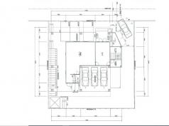
物件写真・間取り
物件概要
| 物件名 | MESSAGE放出東 御成約済 |
|---|
| 交通機関 | JR学研都市線「放出駅」 徒歩 8分 おおさか東線「放出駅」 徒歩 8分 |
|---|
| 所在地 | 大阪市鶴見区放出東2丁目21ー36 |
|---|
| 間取り | 1 K |
|---|
| 土地権利 | 所有権 |
|---|
| 土地面積 | 447.51㎡ |
|---|
| 私道負担面積 | 無し |
|---|
| 建物面積 | 750.52㎡ |
|---|
| 建物構造 | 鉄骨造 |
|---|
| 築年月 | 1991年03月 |
|---|
| 都市計画 | 市街化区域 |
|---|
| 用途地域 | 準工業地域 |
|---|
| 建ぺい率 | 80% |
|---|
| 容積率 | 200% |
|---|
| 駐車場 | 有 |
|---|
| 地目 | 宅地 |
|---|
| 現況 | 賃貸中 |
|---|
| 引渡し | 相談 |
|---|
| 備考 | 専属:株式会社ホームメッセージ |
|---|
| 取引態様 | 売主 |
|---|
| 情報登録日 | 2022年01月22日 |
|---|
| 情報更新日 | 2022年01月22日 |
|---|

















